Gallery render

Flemish Museum of Contemporary Art (VMHK)

Antwerp (BE)

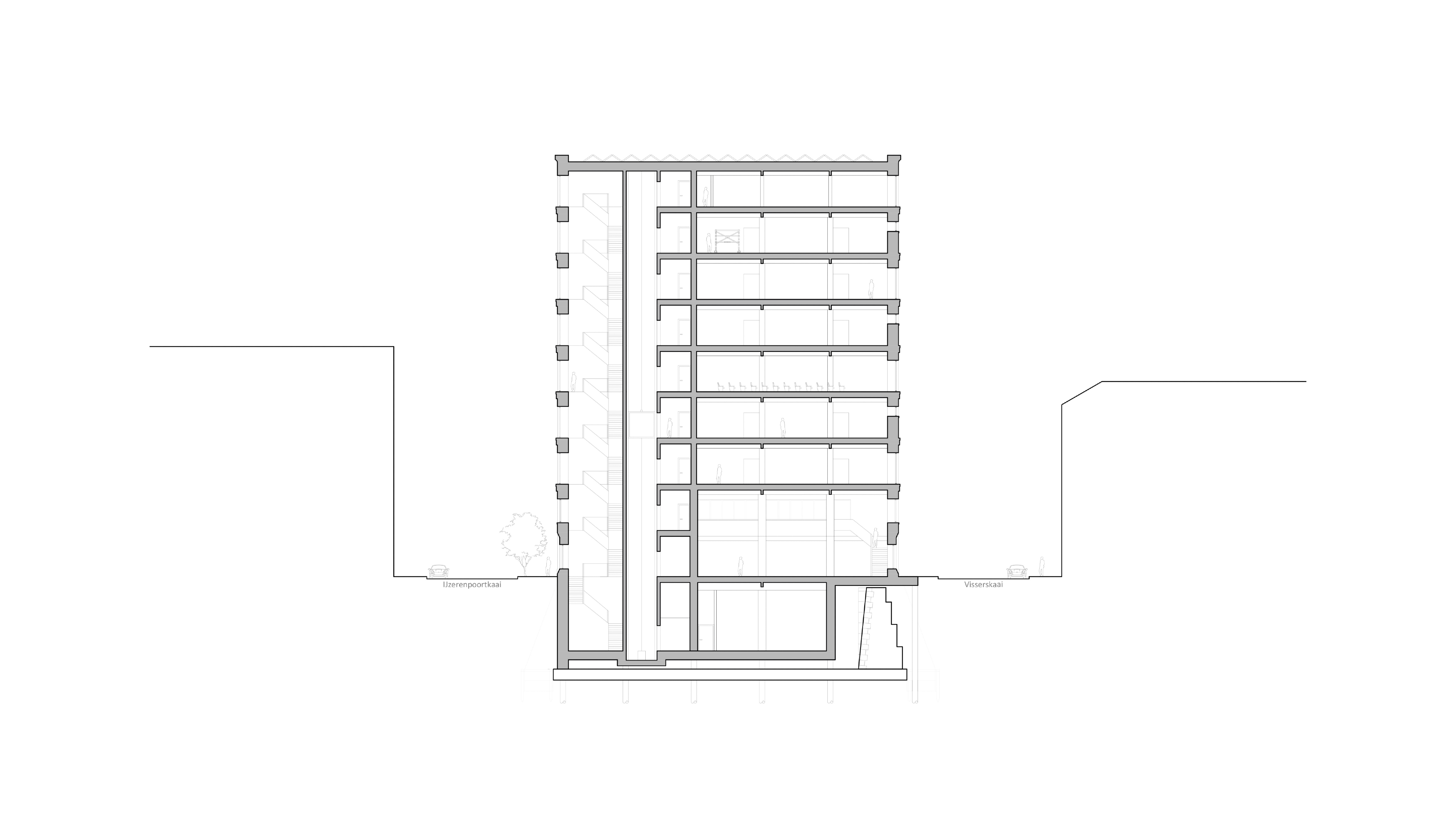
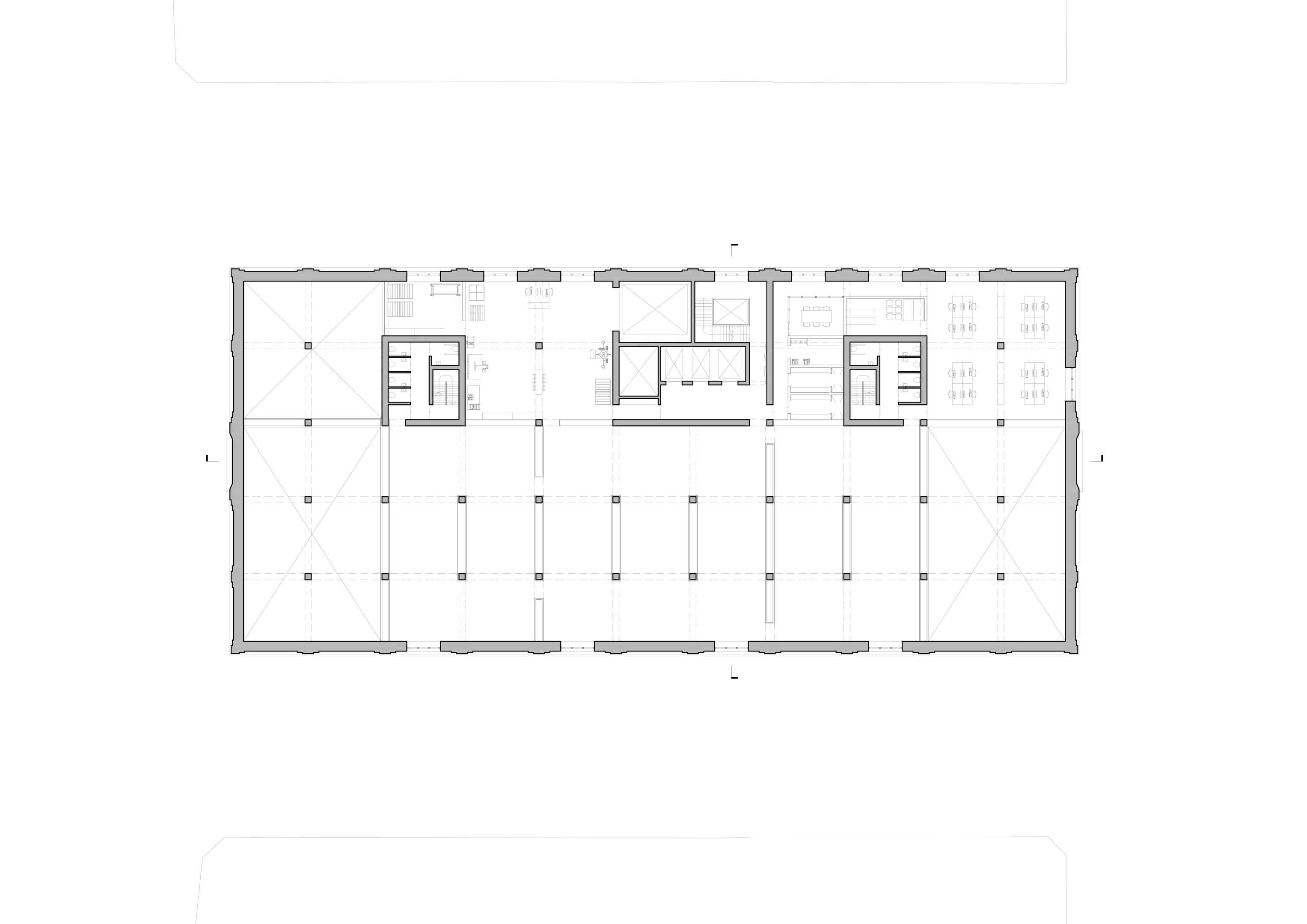
The new design for the Flemish Museum of Contemporary Art (VMHK) endeavoured to translate the nineteenth and twentieth century warehouse architecture into a contemporary art museum. The 'Warehouse for Art' symbolizes its role as a repository for knowledge and artworks, while embracing the genius loci of the former port identity along the Scheldt river and its surrounding brick buildings with a strong horizontality. This industrial character is neutral, but not as aseptic as a characterless white cube and devoid of architectural caprices. Its inherent flexibility ensures adaptability for the museum and future functions, making it future-proof. Moreover, the design questions the conventional notion of the contemporary museum, changing from an exclusive institution into a public building. In this pursuit of an 'anti-museum', the warehouse exemplifies a departure from the typical museum typology. Instead it represents a typology that contemporary art museums have discovered in industrial heritage and can fit into newly constructed buildings of the twenty-first century.

Type: Museum / Interior   Phase: Master graduation   Clients: M HKA & Technische Universiteit Delft   Year: 2022-2023

Type: Museum / Interior

Phase: Master graduation

Client: M HKA & Technische Universiteit Delft

Year: 2022-2023

An Architecture for Art
Ring of Rotterdam